BEFORE & AFTER

施工実績

キッチンリノ・新築から補助金サポートまで、実際の施工事例をご紹介します。

前面には海があり、後ろにはPOOLがある家の全面改装
kitchen,bathroom,full-renoBC申請代行

前面には海があり、後ろにはPOOLがある家の全面改装

海とプールに挟まれた家は、「野生の自然」と「管理された贅沢」という2つの水景を同時に愉しめる稀有な立地です。この二面性を活かし、前面の海で開放感を、背面のプールで静謐なプライベート感を演出。リノベーションにより、視線が突き抜ける「抜け」を作ることで、青のグラデーションに抱かれる究極のリゾート空間が実

📍 AUCKLAND5か月工期お勧め度:✅ 2016/02/16完成

詳しく見る →

キッチン周りのリノベーション
キッチン・水回りBC申請代行

キッチン周りのリノベーション

キッチンの壁を解き放ち、住まいに光と風の通り道を。遮るもののない開放感が、家族の時間を鮮やかに彩ります。生活感の出やすいランドリーも洗練された空間へ刷新し、古びた窓は最新の意匠へと昇華。視界が抜けるたび、心が整う。機能美と開放感が調和する、次世代のJapandiスタイルをあなたの日常に。

📍 AUCKLAND 3か月工期お勧め度:✅ 2017/12/04完成

詳しく見る →

外観は洋風、内観は日本式へのフルリノベーション
full-reno,kitchen,bathroomBC申請代行

外観は洋風、内観は日本式へのフルリノベーション

洋風の外観からは想像もつかない、檜の香りと木目に包まれた「現代の和」を。家の中心に配したキッチンが家族を繋ぎ、増築で広げた空間には畳の温もりと檜風呂の癒やしを添えました。洋の機能美に日本の情緒を宿した、新築以上の贅沢。木の呼吸を感じながら家族が自然と集まる、五感に響く究極のジャパンディ空間です。

📍 AUCKLAND 4か月工期お勧め度:✅ 2020/07/23完成

詳しく見る →

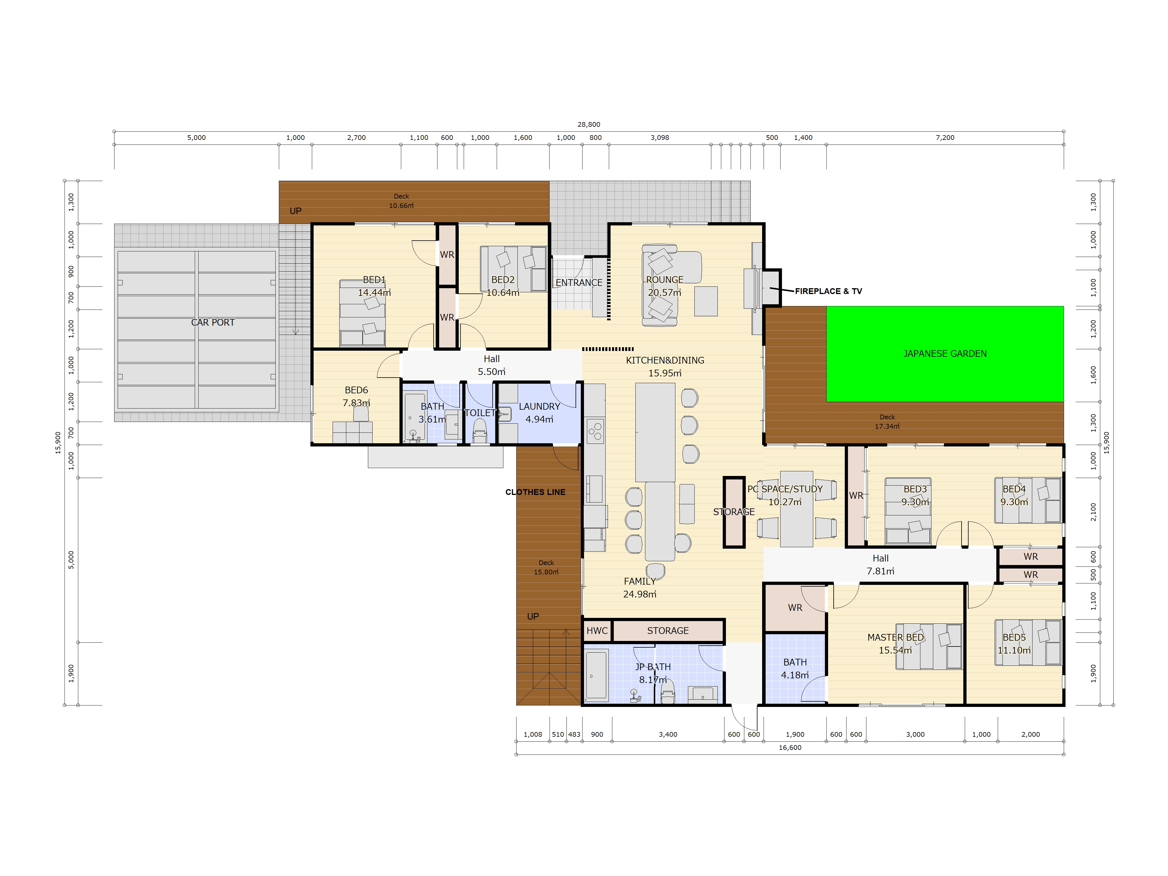
拡張工事含む全面改装
propertyBC申請代行

拡張工事含む全面改装

家族の鼓動が重なる、住まいの再定義。増築により面積を2倍に拡張し、家の中心には「絆の拠点」となるアイランドキッチンを配置しました。増設した子供部屋から自然と家族が集まり、笑顔が循環する大空間へ。既存の枠を超え、光と開放感に満ちた「次世代の集いの場」として、住まいは今、美しく生まれ変わります。

📍 AUCKLAND 5か月工期お勧め度:

詳しく見る →